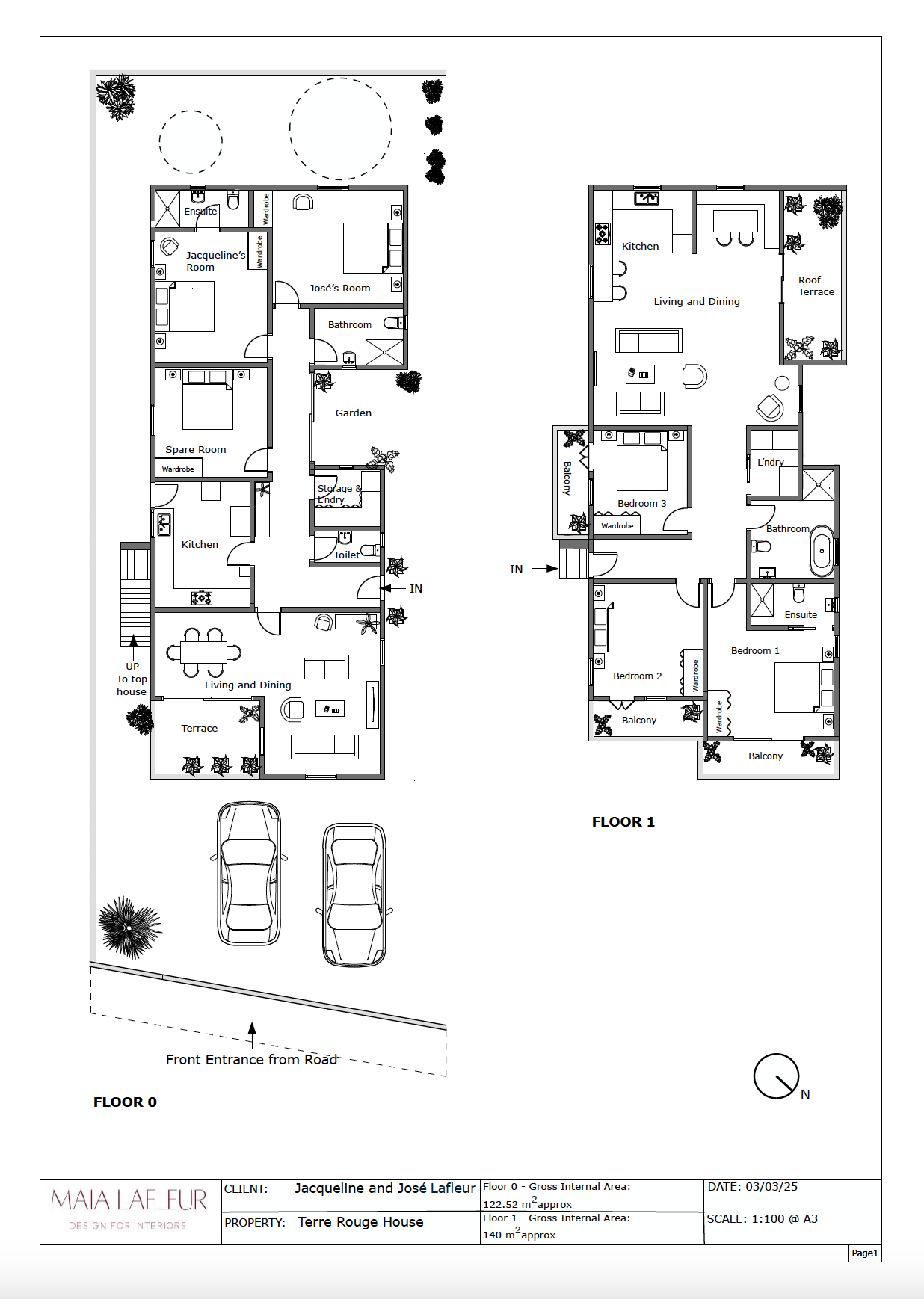
Maia has been working on plans, with a construction company and her husband’s Mauritian family, to help design a house in Terre Rouge, Mauritius. The house has two floors, both with a separate entrance. The ground floor will be a 3 bedroom private home with access to a front and side garden. The first floor will have 3 bedrooms, with a private terrace, for rental and UK family holiday accommodation.

Photograph of plot of land for building a new home, Terre Rouge, Mauritius.
Photograph of plot of land after site clearance, for building a new home, Terre Rouge, Mauritius.

Plot

Plot after site clearance, foundations cast and the start of block work.

Layout plan for a two storey house new build in Terre Rouge, Mauritius.

Internal layout plans.

Revised layout with ensuite added to the ground floor and the first floor terrace moved to the rear.

3D Model of a two storey new build house in Terre Rouge, Mauritius.
3D Model of  a two storey new build house in Terre Rouge, Mauritius.

3D model.

3D model.

Photorealistic Render